PR-32

PR-32

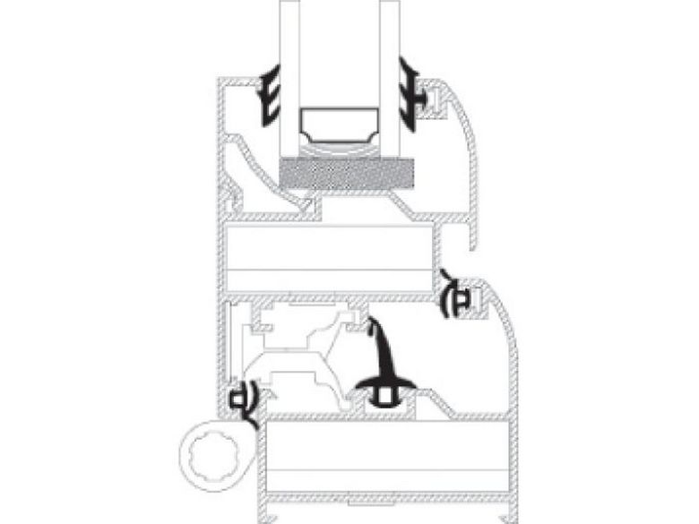
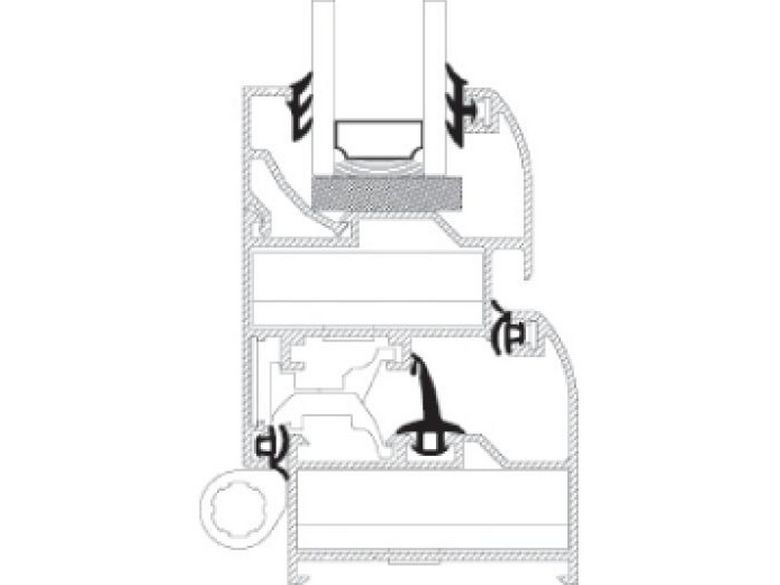
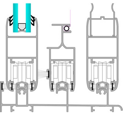
Розсувна система, яка легко монтується, підходить для дверей та вікон зі стандартним відкриванням і м’яким округлим дизайном. Підтримує встановлення багатоточкового замка для підвищеної безпеки.

Типології

Основні характеристики PR-32

Проекти з цією специфічною системою

Завантаження PR-32